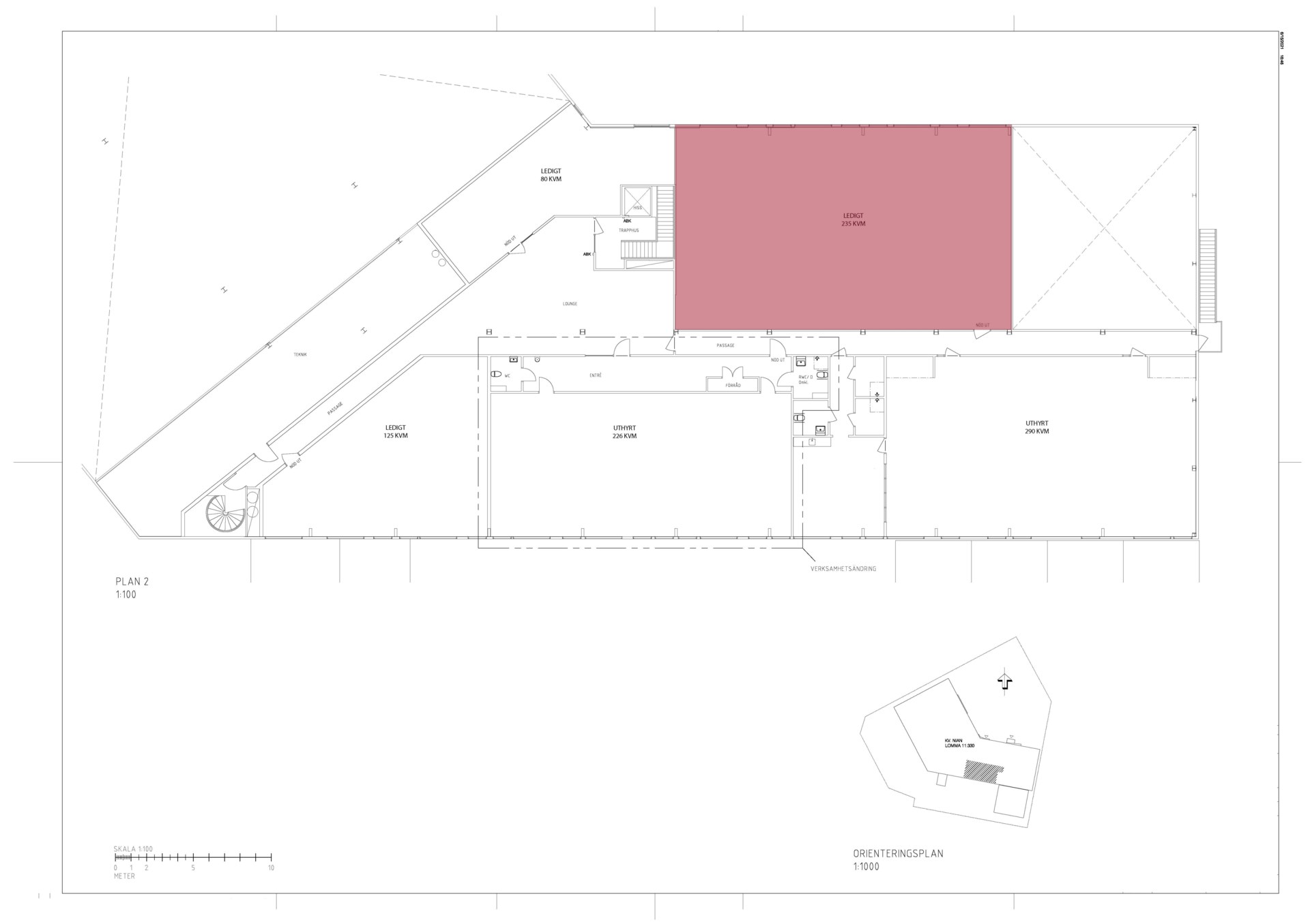
Kontor 275 KVM | Bronsgatan 4, Lomma
TA KONTAKTLokalen är nyproducerad och ger möjlighet att anpassa ytan efter er verksamhet och era behov. Lokalen är belägen på plan 2 med stora ljusinläpp och ger en generös yta för verksamhet. Hiss finns. Bra exponeringsläge för er verksamhet samt lättillgängligt, representativt läge för besökare och kunder. Parkering finns precis utanför.
Fastigheten ligger på ett mycket strategiskt och välexponerat läge nära E6:an och ett handelsområde som lockar besökare från närområdet och E6:an. I samma byggnad finns hyresgäster inom kontor, padel, idrott och blomsterhandel. I samma område finns McDonalds, Burger King, Circle K, gym, skola, godisbutik och bostäder.
"Nyproducerad lokal om 275 kvm vid Lommas norra infart. Strategiskt läge för tillgänglighet och mycket god exponering."
FAKTA
Gatuadress: Bronsgatan 4
Stad: Lomma
Område:
Typ av objekt: Kontor
Storlek: 275 m²
OMGIVNING
Optimalt läge på Lommas nya handelsplats, Kvarteret Nian. Här har det uppförts byggnader för handel, idrott, kontor, restauranger och bostäder. I närheten finns bostadsområde med villor, hyresrätter och bostadsrätter samt förskola.
SERVICE
I området finns Circle K och McDonalds sedan ett antal år tillbaka samt övrig handel inom fordon, badrum, hjälpmedel etc. Närmsta matbutik är Lidl inom gångavstånd.
KOMMUNIKATIONER
Närhet till E6:an med på/avfarter i söder- och norrgående riktning samt väg 103 mot Lund/Kävlinge/Staffanstorp. Gott om parkeringsplatser finns intill fastigheten. Under 2 minuters promenad till busshållplats med bussar till och från Lund och Malmö.
JN









