Lager 400 KVM | Skogsvägen 1A, Göteborg
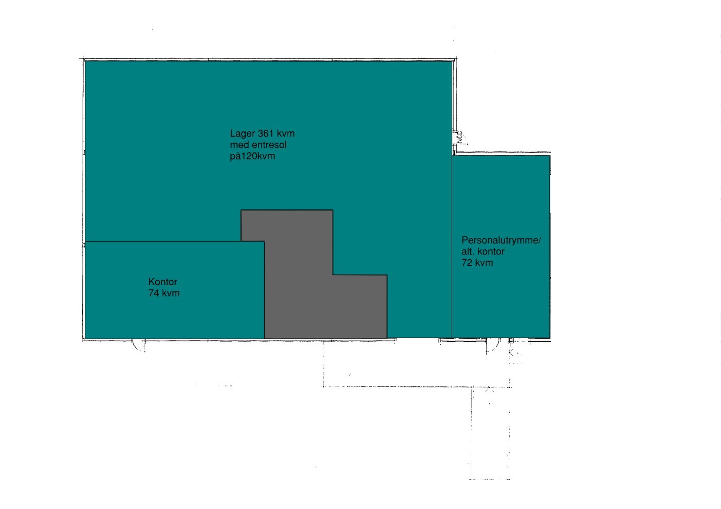
TA KONTAKTLagerlokal om om ca 400-600 kvm. Det är bra takhöjd med stor port. Det finns flera kontor.
Gott om utställningsytor på den stora gårdsplanen.
"Lagerlokal om om ca 400-600 kvm"
FAKTA
Gatuadress: Skogsvägen 1A
Stad: Göteborg
Område:
Typ av objekt: Lager
Storlek: 400 m²











